House Plans by Size Select
20 x 20 ft Plans

15 x 30
RA
East
15 x 30 ft Duplex House Plan Of The Residential Building
RA0007
Rating
This 3BHK duplex house plan face East direction was beautifully designed for 15 x 30 plot with G+3 structure. Each floor has been enhanced to maximize comfort , utility without any compromise. Next we will see measurement and detail in the duplex of the buiding.
Ground floor
First enter into the Ground floor parking area is provide for 4'9" x 8'6", then main door placed at northeast direction faces East direction, then open kitchen size of 6'10" is located in southeast direction, stair in south direction which moves in to north direction, dining hall is provided in front of stairs.
Living hall located in west direction that measures 12'2" x 9'4", which occupies a spacious that makes efficiently give a beautiful environment for relaxation and family moments.
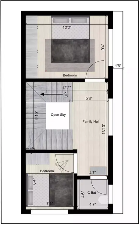
First floor
After move into first floor through duplex stairs, OTS open sky view at middle of stairs for proper fresh air and ventilation. Family hall size of 13'10" x 5'8" in front of stairs is provided in the north direction. Two bedrooms is provided in this floor.
Spacious Master bedroom size of 12'2" x 9'4" in southwest direction , southeast bedroom size of 7'1" x 8'4". This ensures privacy and comfort for all family members. The common bathroom measures 4'6"x 4'7"










